+7
La Teste-de-Buch (33260)

Maison 4 pièce(s) 3 chambre(s) 88 m²

1
1
1 230 € CC*
Réf 2813

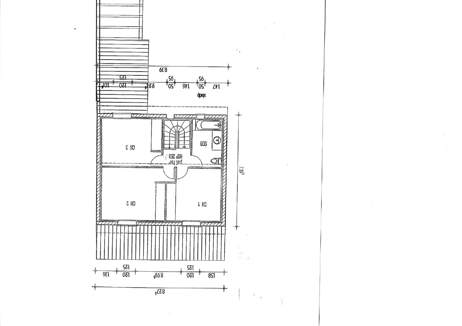
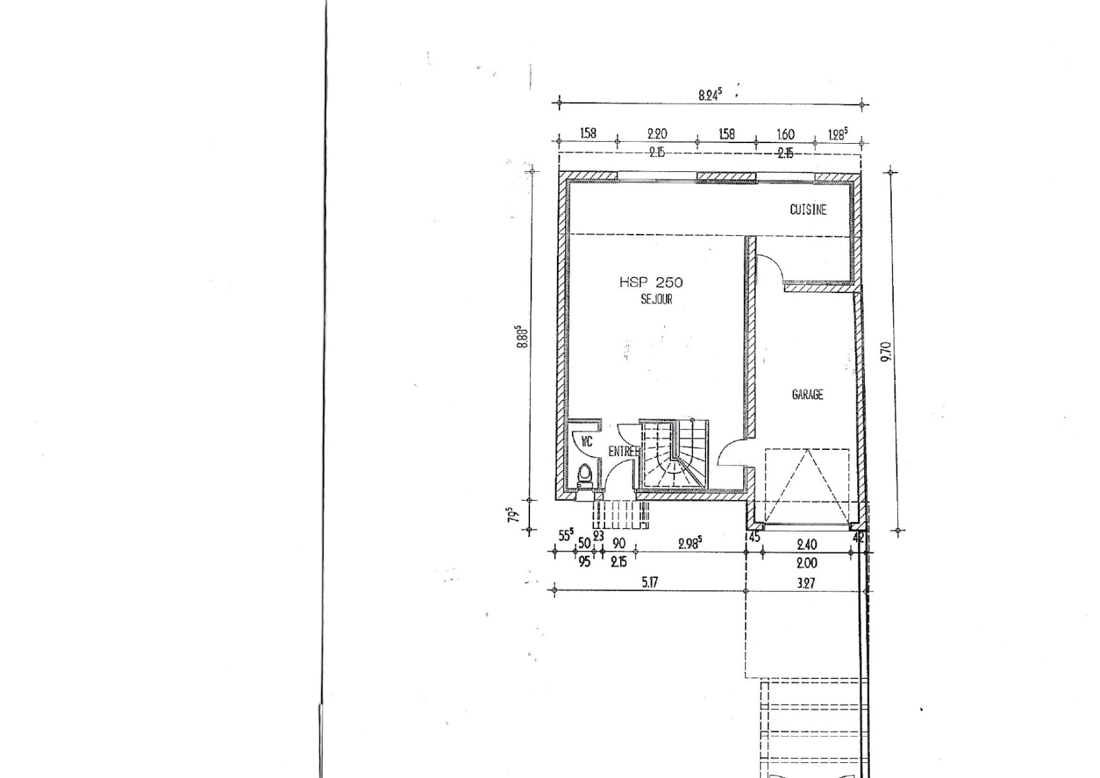
L'Agence COULLAUD vous propose à la location à deux pas du port, cette maison mitoyenne de type 4 avec jardinet et garage. Comprenant au rez-de-chaussée un séjour avec cuisine ouverte aménagée, un WC. A l'étage palier, trois chambres avec placards, une salle de bain avec WC.

Gare, port et marché à pied

Surface habitable : 80 m²

Libre 20 janvier 2026

Loyer 1230€ euros charges comprises dont 30€ euros provisions ordures ménagères, avec régularisation annuelle.

Dépôt de garantie 1 200€

Honoraires de location 1040€ TTC (à la charge du locataire) dont 240€ de frais d'état des lieux.

Les informations sur les risques auxquels ce bien est exposé sont disponibles sur le site Géorisques : www.georisques.gouv.fr

Bilan énergétique

Diagnostics énergetiques
A propos de ce bien Caractéristiques de ce bien
  • Surface 88 m²
  • séjour 3 m²
  • 3 chambre(s)
  • 1 salle(s) de bain
  • construit en 2004
  • cuisine américaine
  • Chauffage individuel : radiateur (electrique)
  • 1 garage(s)
  • exposition Nord-Sud
  • 1 côté(s) mitoyen(s)
  • 2 niveau(x)
  • quartier Centre-ville, Proche centre-ville, Proche commerces, Proche gare, Proche Port

Composition

Composition de ce bien

Rez-de-chaussée

  • entrée
  • salon/sejour
  • cuisine
  • WC
  • garage
  • jardin

Etage 1

  • Palier
  • chambre
  • chambre
  • chambre
  • salle de bain avec WC m²

Financier

Informations financières
Loyer CC* / mois 1 230 €
Dont état des lieux Non renseigné
Dépôt de garantie TTC 1 200 €
Agence Coullaud Agence

* CC : Charges comprises